Podobne oferty
GBI-MS-1804 -- || -- GBI-MS-1845 -- || -- GBI-MS-1938 -- || -- KBN-MS-1764 -- || --2
40,38
10 000,00
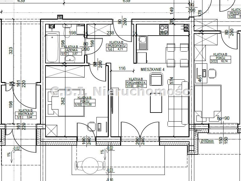
jako przykład jednego z wielu lokali mieszkalnych mieszczących się w budynku, który zostanie wzniesiony na nowo powstałym osiedlu "Apartamenty Parkowe".
Lokal o łącznej pow. użytkowej wynoszącej 40,38 m2 składa się z następujących pomieszczeń:
- przedpokoju 4,75 m2,
- łazienki z WC 3,81 m2,
- pokój 11,55 m2,
- pokój + aneks kuchenny 20,27 m2.
- taras 18,94 m2,
- ogródek 18,94 m2.
* OGÓLNY OPIS INWESTYCJI *
CECHY CHARAKTERYSTYCZNE
- klimatyzacja w każdym lokalu.
- każde mieszkanie posiadać będzie balkon (lub w przypadku lokali położonych na parterze taras) wykończony takimi materiałami jak szkło, metal czy odporna na warunki atmosferyczne deska kompozytowa.
- w każdym segmencie bloków zainstalowana będzie winda renomowanej firmy OTIS.
- lokal zostanie oddany do rąk nowego właściciela w tzw. standardzie deweloperskim, który pozwala na częściową, indywidualną aranżację wnętrz – wedle uznania.
- ściany pomieszczeń zostaną wykończone tynkami wapienno - cementowymi.
- w każdym pomieszczeniu przewidziano po 3 punkty elektryczne; w kuchni dodatkowo doprowadzona zostanie tzw. siła.
- planowana inwestycja wzniesiona zostanie w umiarkowanie cichej i spokojnej okolicy.
- w pobliżu znajduje się Galeria Niwa, wielkopowierzchniowy sklep sieci Lidl, inne punkty handlowo usługowe oraz szkoły. Cały teren wokół nieruchomości zostanie ogrodzony i w pełni wyposażony w niezbędną infrastrukturę, m. in. drogę dojazdową, chodniki, lampy uliczne, itp.
- w pobliżu funkcjonują również przedszkola, szkoły a także ośrodek zdrowia oraz tereny sportowo – rekreacyjne, atrakcyjna architektura zieleni.
- osoby preferujące równowagę pomiędzy komfortem mieszkania, bliskością do centrum miasta i zielonym otoczeniem z pewnością znajdą tu coś dla siebie.
- CO oraz woda użytkowa zapewniona z miejskiej sieci grzewczej. Zastosowano tu ogrzewanie podłogowe.
- w garażu podziemnym
- w cenie 50 000 zł z komórką lokatorską,
- w cenie 45 000 zł bez komórki lokatorskiej,
- na parkingu przed budynkiem, za kwotę 30 000 zł.
PRZEWIDYWANY CZAS ZAKOŃCZENIA PRAC BUDOWLANYCH
Zakończenie prac, w ramach których wzniesiony zostanie budynek panuje się na IV kwartał 2024 r.
DOSTĘPNE WARIANTY LOKALI MIESZKALNYCH
W budynku dostępnych będzie 32 lokali mieszkalnych. Kupujący będą mogli nabyć mieszkania jedno, dwu lub trzypokojowe o powierzchniach od ok. 28 m2 do 68 m2.
W dołączonych do oferty zdjęciach pokazano przykładowe rozkłady pomieszczeń, dla różnych wariantów mieszkań.
W celu uzyskania dalszych informacji lub dokonania rezerwacji apartamentu zapraszamy do naszego biura.
Nota prawna
balkonów/tarasów





